< a href=" " title="免费电话">免费电话
家居材料类 - 温州方圆仪器有限公司
咨询热线:4008888212
通用
染整、服装、面料
日用及防护用品
纤维纱线类
拉链纽扣
土工(布)合成材料
地毯
家居材料类
产品目录索引
< a href=" " title="免费电话">免费电话
编号产品名称符合的主要标准
FSY153-Ⅳ床芯弹性测试仪
FSY153-I弹簧受压耐疲劳仪
FSY153弹簧受压耐疲劳仪
FWS481家用泵测试系统 GB/T 40181-2021等测试标准。
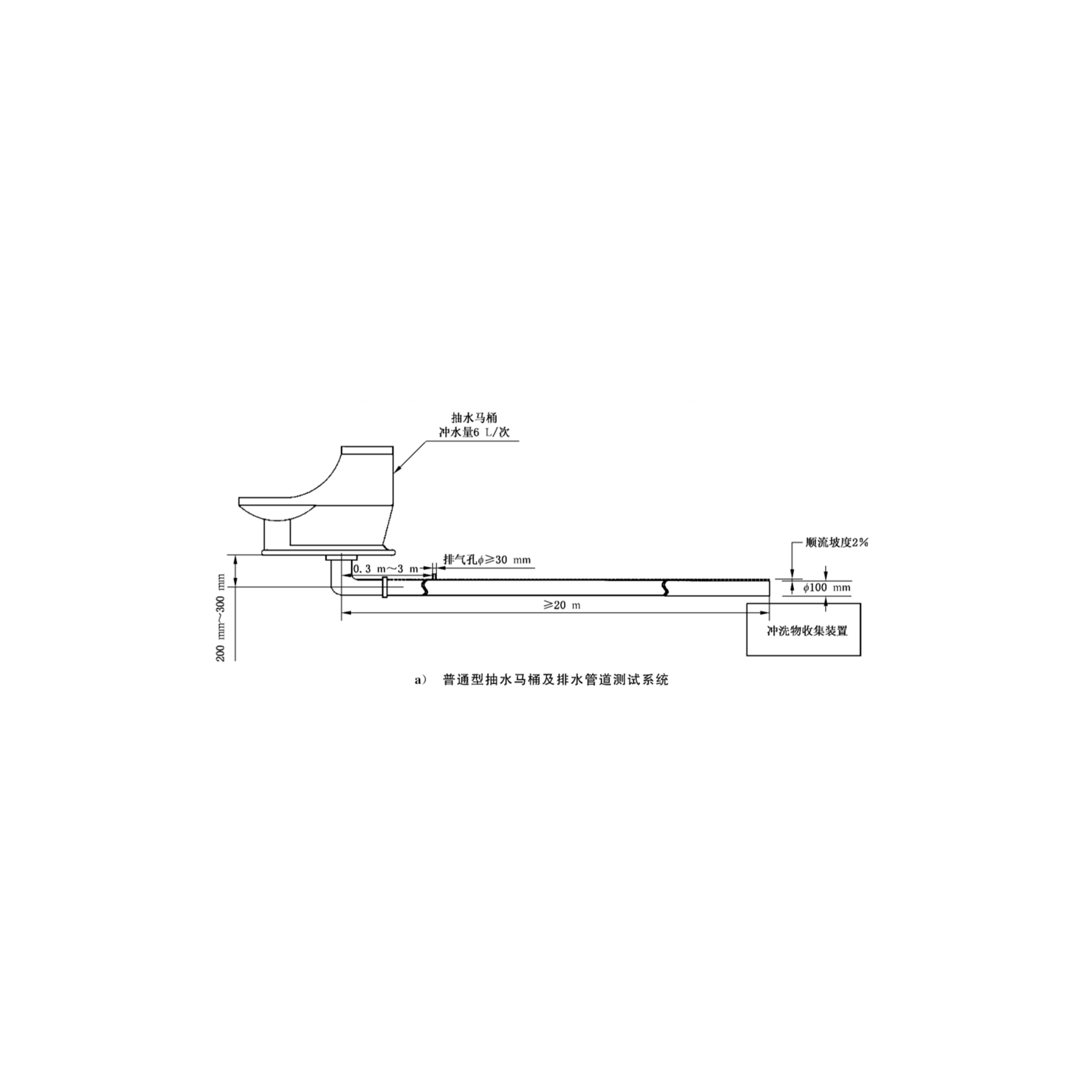
FWS482抽水马桶及排水管道测试系统 GB/T 40181-2021等测试标准。
FWS483沉解试验系统 GB/T 40181-2021等测试标准。
FY301床垫耐久性试验机 QB1952.2等标准。
FY302海绵回弹性测定仪
共 41 条记录 12345 6
< a href=" " title="免费电话">免费电话